MANDAT EXCLUSIF Appartement T4 de 82 m² à SARCELLES VILLAGE
Description de ce bien immobilier
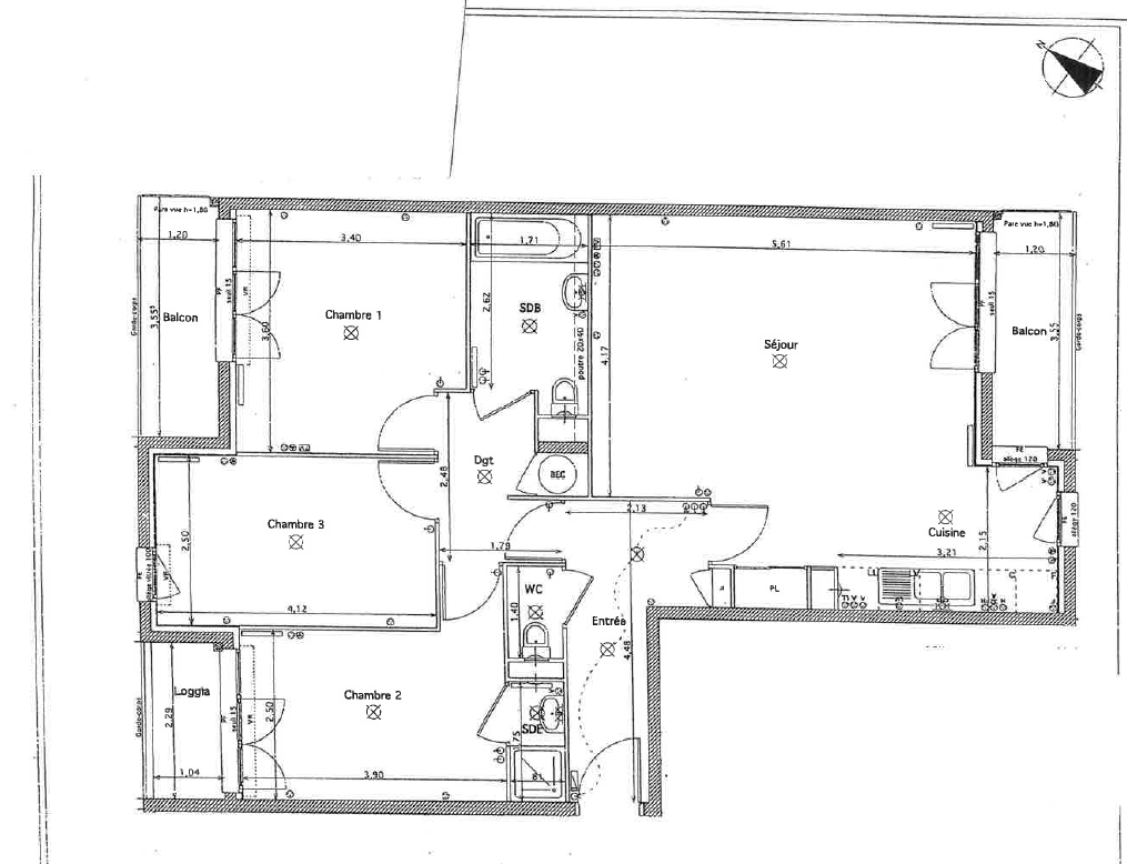
Seulement chez J.M IMMOBILIER - Résidence Le Clarteo à Sarcelles, nous vous proposons cet appartement de 4 pièces principales au 2ème étage avec ascenseur et une aire de stationnement double en sous-sol. De belles prestations pour cet appartement en double exposition qui vous offre une entrée, wc, un séjour avec cuisine ouverte de plus de 30 m² ouvrant sur balcon, un dégagement distribuant trois chambres ( 10.30 m² / 10.69 m² et 11.69 m²) dont deux avec balcon et une de type suite (avec salle d'eau), salle de bains. Copropriété 91 lots principaux - Quote part annuelle 2907.97 € (base 2024). Le vendeur déclare qu'il n'y a pas de procédure en cours. Date de réalisation du diagnostic énergétique : 20/10/2025. Consommation énergie primaire : 170 kWh/m²/an. Consommation énergie finale : 73 kWh/m²/an. Montant estimé des dépenses annuelles d'énergie pour un usage standard : entre 1100 € et 1540 € par an. Prix moyens des énergies indexés sur l'année 2024 (abonnements compris). Les informations sur les risques auxquels ce bien est exposé sont disponibles sur le site Géorisques.
215 000 € FAI
Informations détaillées de ce bien
- Mandat : n°JM215S
- Surface habitable : 82 m²
- Nombre de pièces : 4
- Nombre de chambres : 3
- Nombre de toilettes : 1
- Nombre de salles de bain : 2
- DPE D (170)
- GES A (5)